Via Orbetello | Realty ONE Group Italia

VISTA 360
STREET VIEW
LOCALI
CAMERE
GIARDINO
BALCONE/I
RIFERIMENTO
DESCRIZIONE
CARATTERISTICHE
DATA ANNUNCIO
TIPOLOGIA
DISPONIBILITA'
ORIENTAMENTO
SPESE
CONDOMINIO
RISCALDAMENTO
EFFICIENZA ENERGETICA
COSTRUZIONE
RISTRUTTURAZIONE
EPI (Rinnovabile)
EPI (Non Rinnovabile)
EMISSIONI CO2
STATO
RISCALDAMENTO
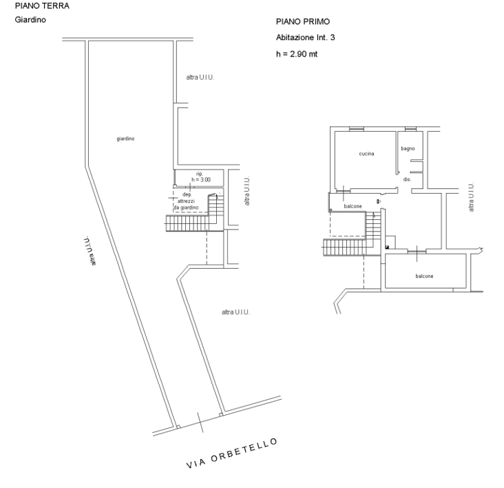
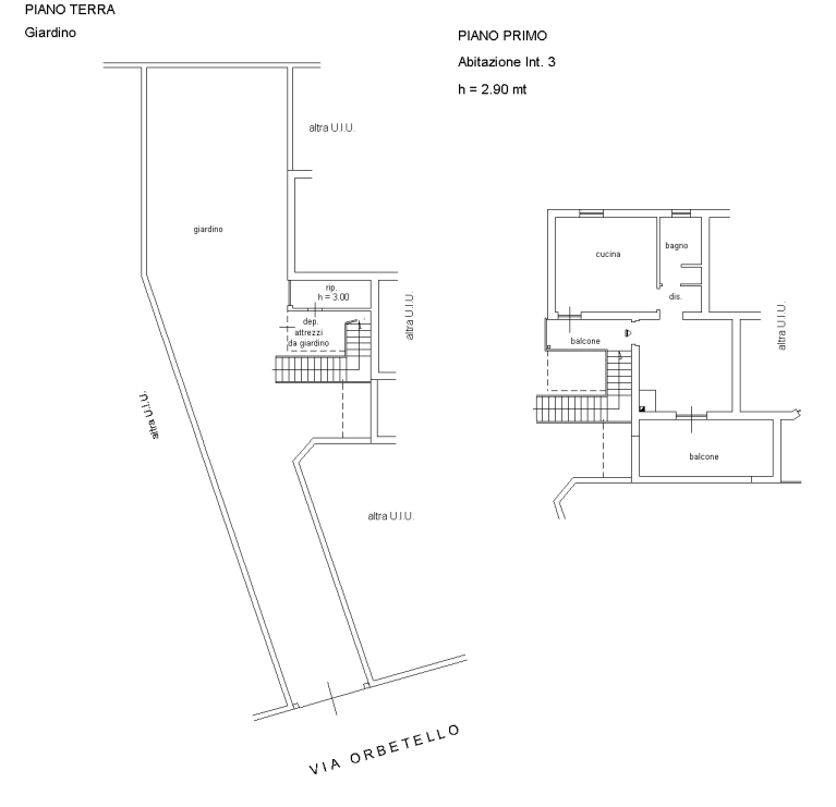
PLANIMETRIA
VISTA 360
STREET VIEW
Street View split-map-panes
This image is no longer available
Rotate the view
Google
Image may be subject to copyright
IMMOBILI SIMILI

GIARDINO
CAMERE
PIANO
IMMOBILE PROPOSTO DA
RICHIEDI INFORMAZIONI
Copyright © 2022-2024 Realty ONE Group Italia. All Rights Reserved. Termini & Condizioni
BESbswy